Discover how to create a proof of sale for a mobile home and the details you require to include for a smooth deal.
A proof of purchase is a vital file for any type of large transaction, consisting of offering a mobile home. Make sure to include all the best info in your mobile home proof of purchase to aid streamline the sales process.
What is a receipt for a mobile home?
A proof of purchase is a legal record that details all the details of a transaction between a customer and a vendor. It aids guarantee that both celebrations are on the very same page and hopefully stops any type of future misconceptions.
The customer can likewise utilize the bill of sale as receipt in order to place the title in their name, upgrade registration info, and obtain insurance.
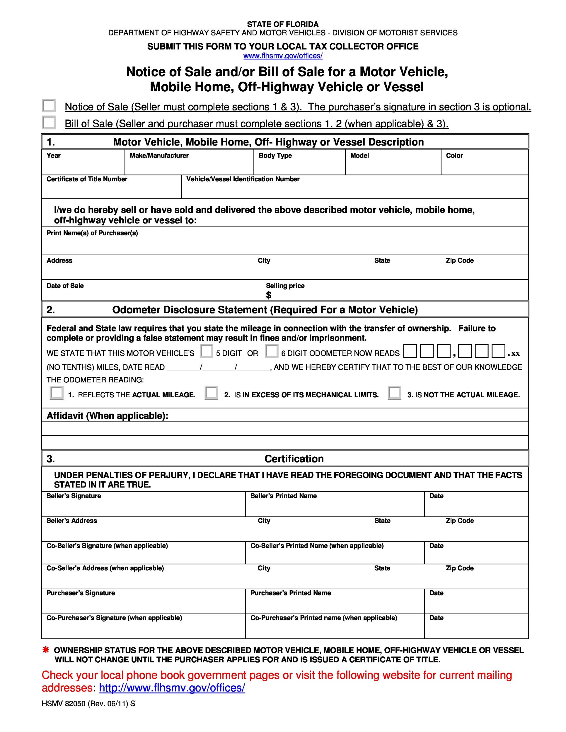
Information to include in a mobile home receipt.
Since it is a legal document, it is essential to be as outlined as feasible on the bill of sale for a mobile home. Be sure to consist of a minimum of the adhering to info:
- Mobile home summary, including VIN, identification number, make, version, and year
- Buyer and vendor names, addresses, and get in touch with details
- Sale day
- List price, consisting of any kind of tax obligations
- Sale problems and terms, consisting of guarantees or “as is” condition Of
training course, no lawful paper is complete without a trademark.More Here Delaware Manufactured Home Bill of Sale At our site When the customer (and in some states, the seller) indications the receipt, the offer is official, and the mobile home comes from the purchaser.
Actions to compose a receipt for a mobile home.
Since we understand which details to include in a proof of purchase for a mobile home document, allow’s walk through the eight important steps to make your bill of sale strong and thorough:
- Identify the events entailed with complete names and addresses.
- Define the mobile home, consisting of the make, version, year, VIN, and devices.
- Specify the price, omitting additional charges.
- Outline settlement terms, whether round figure or installments, with dates and passion if relevant.
- Keep in mind the sale date for legal record-keeping.
- Document the mobile home’s condition, service warranties, and any type of known issues.
- Acquire signatures from both celebrations and follow neighborhood notarization or witness needs.
- Address the title transfer, ownership, and property day to stay clear of misunderstandings.
Do you have to have a receipt notarized to be legal? The registration demand for a proof of purchase differs relying on your place and the deal. Sometimes, notarization might be obligatory in order for it to be thought about a legitimately binding document, while in other circumstances, it may not be required.
Can you create your own mobile home receipt PDF?
Yes, you definitely have the alternative to craft your own mobile home proof of sale PDF. You can customize it to your own demands. This can be helpful if you’re fluent in the lawful elements of the deal and want a tailored contract.
On the other hand, making use of a state-provided mobile home bill of sale PDF design template can be convenient. These themes are generally designed to fulfill neighborhood legal demands, assisting to minimize the opportunity of errors and guarantee conformity.
Your choice relies on your convenience level with the lawful facets of the transaction and its intricacy.
Handle your proof of purchase for a mobile home easy.
To simplify the sales process, you can develop and authorize a proof of purchase completely online. In this way, neither celebration needs to arrange in-person conferences or manage printers, scanners, or fax machines.
E-signature software like Adobe Acrobat allows both events include their legal trademarks to the proof of sale online – from virtually any tool and from anywhere – with simply the click of a button. Explore what much more Acrobat can do to make selling your mobile home a wind.

